1. トップ
  2. 恋愛
  3. 未来の建築は”変形”する!レゴみたいな「組み替え自在の建物」

未来の建築は”変形”する!レゴみたいな「組み替え自在の建物」

  • 2024.5.8
ドイツの「再構築可能な建物」
ドイツの「再構築可能な建物」 / Credit:Gustav-Duesing

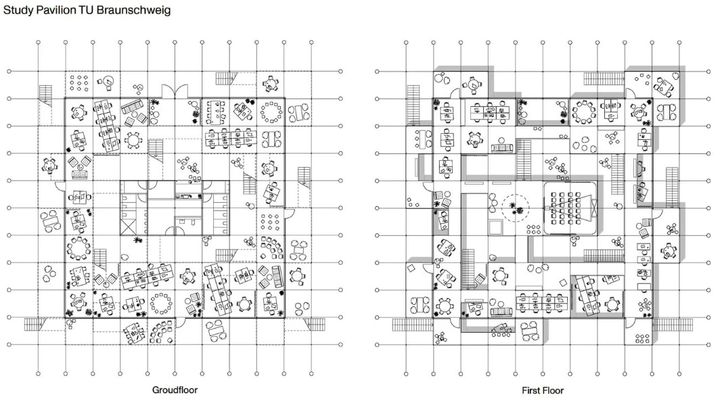
ドイツのブラウンシュヴァイク工科大学(Technische Universität Braunschweig)に、学生用の特殊なパビリオン(仮設の建築物)が建設されました。

一見、普通の建物のように思えますが、実はすべてが正方形のモジュールの組み合わせで構成されていて、建物の構造を簡単に「拡張・移動・再構成」できる設計になっています。

まるでパズルゲームのように、間取りを変化させることができ、変化し続ける学生たちの活動のニーズに対応することができます。

この作品は、ドイツの建築家であるグスタフ・ドューシング氏によって考案されたものであり、2024年のEU現代建築賞(ミース・ファン・デル・ローエ賞)を受賞しました。

目次

  • 2024年のEU現代建築賞を勝ち取った「再構築可能な建物」

2024年のEU現代建築賞を勝ち取った「再構築可能な建物」

ブラウンシュヴァイク工科大学に建設されたパビリオン
ブラウンシュヴァイク工科大学に建設されたパビリオン / Credit:Gustav-Duesing

EUが、過去2年間に建てられた最も優秀な建造物を対象に、隔年で贈るのが「EU現代建築賞」です。

この賞は、「ヨーロッパにおける質の高い建築作品を認め、表彰する」ことを目的としており、スペインのミース・ファン・デル・ローエ財団の協力の下、1987年から実施されてきました。

2024年のEU現代建築賞を受賞
2024年のEU現代建築賞を受賞 / Credit:Gustav-Duesing

そして2024年に受賞したのが、ドイツの建築家グスタフ・ドューシング氏が設計したパビリオン(仮設の建築物)です。

このパビリオンは、ドイツのブラウンシュヴァイク工科大学のキャンパスに建設されており、学生たちの様々な活動を支えてくれます。

一見すると、どこにでもある「フリースペースの建物」という感じですが、興味深いのはその構成です。

学生たちのフリースペース
学生たちのフリースペース / Credit:Gustav-Duesing

この建物は、「建設されてからずっと同じ姿を保つ」のではなく、「いつでもフロアを再構成できる」ように作られています。

またニーズに応じて拡張したり、移転させたりすることも、比較的簡単に行えます。

例えば、勉強スペースや会議スペースとして細かく部屋を仕切ることもできれば、再構成して広い展示スペースを作り出すことも可能なのです。

また建物を拡張することで、使用者の増加に対応することも可能です。

さらに、「新たな建物を建てるスペースを確保するためにパビリオンをキャンパス内の別のスペースに移転させる」なんてことも比較的簡単に行えるというわけですね。

スチール骨組みと木材の板を組み合わせて構築する
スチール骨組みと木材の板を組み合わせて構築する / Credit:Gustav-Duesing

こうした再構成可能な建築を可能にしているのが、モジュール式の設計システムです。

基本的な構成には、細いスチールの骨組みと木材の板が使用されており、すべてが解体可能です。

もともと解体することを前提に1つ1つの部品が作られているため、解体された部品すべてを他の場所で再利用することも可能となっています。

基本構造は3m×3m。まるでパズルゲームみたい
基本構造は3m×3m。まるでパズルゲームみたい / Credit:Gustav-Duesing

そして梁と柱からなる基礎構造は、すべて3m×3mの正方形のグリッド上に構築されています。

そのため、同じ部品を用いて拡張したり再構成したりすることが一層容易になっています。

デザインも比較的簡単であり、まるでパズルゲームをするかのように、正方形の区画を取り付けたり移動させたりして、その時に必要な間取りを考えることができます。

シンプルな部品の組み合わせにより、自由なデザインが可能
シンプルな部品の組み合わせにより、自由なデザインが可能 / Credit:Gustav-Duesing

ちなみに、ブラウンシュヴァイク工科大学に建てられたパビリオンは、2フロアで構成されており、吹き抜けを作って「開放感」のある空間に仕上げています。

部品や構造はシンプルですが、自由度の高い再構成システムにより、オリジナリティを出すことができるのです。

とはいえ、日本のような地震大国では、耐震性に不安を感じるかもしれません。

耐震性が気になるところ
耐震性が気になるところ / Credit:Gustav-Duesing

このパビリオンが建てられたドイツでは、ヨーロッパの他の国々や、オーストラリア、カナダと同じく地震が非常に少ないため、耐震性がそこまで重要視されていない可能性があります。

もちろん、仮にそうした制限があるとしても、このパビリオンにはEU現代建築賞を受賞するだけの十分な可能性が秘められています。

この新しいデザインは、大学だけでなく、様々な場所や状況でも活躍すると考えられます。

例えば、被災地における一時的な宿泊施設として利用し、被災者のニーズに合わせて再構成したり拡張したりできるでしょう。

変化に対応するパビリオン。被災地やパンデミックで役立つかも。
変化に対応するパビリオン。被災地やパンデミックで役立つかも。 / Credit:Gustav-Duesing

またコロナ禍で生じたような「病床ひっ迫」にも対応できるかもしれません。

患者が今後も増えていくのか、それともワクチンの登場により減少していくのか、先の見えない特殊な状況において、部屋の数を比較的簡単に増やしたり減らしたりできるパビリオンが役立つ可能性があるのです。

状況の変化が読めない現代社会において、再構成可能なパビリオンこそが、まさに現代建築を代表しているのかもしれません。

参考文献

Reconfigurable building takes out EU Prize for Architecture
https://newatlas.com/architecture/scalable-reconfigurable-building/

Studierendenhaus TU Braunschweig, 2023
https://gustav-duesing.com/projects/the-informal-studio-3/

ライター

大倉康弘: 得意なジャンルはテクノロジー系。機械構造・生物構造・社会構造など構造を把握するのが好き。科学的で不思議なおもちゃにも目がない。趣味は読書で、読み始めたら朝になってるタイプ。

編集者

海沼 賢: ナゾロジーのディレクションを担当。大学では電気電子工学、大学院では知識科学を専攻。科学進歩と共に分断されがちな分野間交流の場、一般の人々が科学知識とふれあう場の創出を目指しています。

元記事で読む
の記事をもっとみる